Проектирование звукоизоляция, акустика, термоизоляция
Ищете тех кто решит не решаемое? Мы команда инженеров с практическим опытом, наши проекты легко реализуемы строителями, понятны и просты к реализации. Мы работаем не для бумаги, работаем на репутацию.
Эксперты в области строительной акустики (звукоизоляция) и архитектурной акустики (внутренней акустики помещений) для объектов любого масштаба, обеспечиваем решение задач любого уровня сложности.
Подготовка всех необходимых технических расчётов для каждого отдельного проекта, разработка индивидуальных узлов, проверка проектной документации, BIM модели для архитекторов — перечень услуг которые готовы оказать специалисты инженерно-технического центра Барклайн.
Дополнительная звукоизоляция определяется по формуле:

Пример выдержка из расчета , показывает экономию при эксплуатации в годовом исчислении:

В рамках профессиональной инженерной деятельности специалисты нашей компании выполняют следующие основные работы:
- Консультационные услуги и разработка рекомендаций в области обеспечения звукоизоляции помещений.
- Проектирование звукоизоляционных решений.
- Акустический расчет звукоизоляции в возводимых, реконструируемых, ремонтируемых зданиях и отдельных помещениях.
- Проектирование шумозащитных мероприятий.
- Акустические измерения шума и акустических свойств помещений, а также их обследование.
- Консультационные услуги и разработка рекомендаций в области обеспечения акустического комфорта помещений.
- Разработка и проектирование стационарных акустических решений и решений по акустической коррекции.

Проектирование и замеры
Зачастую заказчики желают усилить звукоизоляцию или улучшить акустические свойства различных помещений (жилых помещений квартир и загородных домов, офисов, торговых центров, производств, административных зданий, спортивных залов и комплексов, бассейнов, ресторанов , баров и т.п.) без комплексного понимания и учета совокупностей факторов, от которых зависит успех при решении поставленной задачи, например, основываясь на известности какого-либо материала, на общем описании его целевого назначения, на его характеристиках, но без учета его эффективности при работе с другими материалами и не вдаваясь в подробности физики распространения звуковой энергии при определенных особенностях общей конструкции и монтажа. Даже одна единственная и на первый взгляд незначительная ошибка, например по применению строительной пены для звукоизоляции строительных конструкций, может оказаться фатальной и свести на нет большое количество материальных и трудовых затрат, вложенных в объект. Корректировка с демонтажем строительных конструкций, переделка различных конструктивных решений могут приводить к существенным увеличениям затрат на объекте, которые не входили в планы заказчика изначально, но из-за допущенных ошибок становятся обязательными.

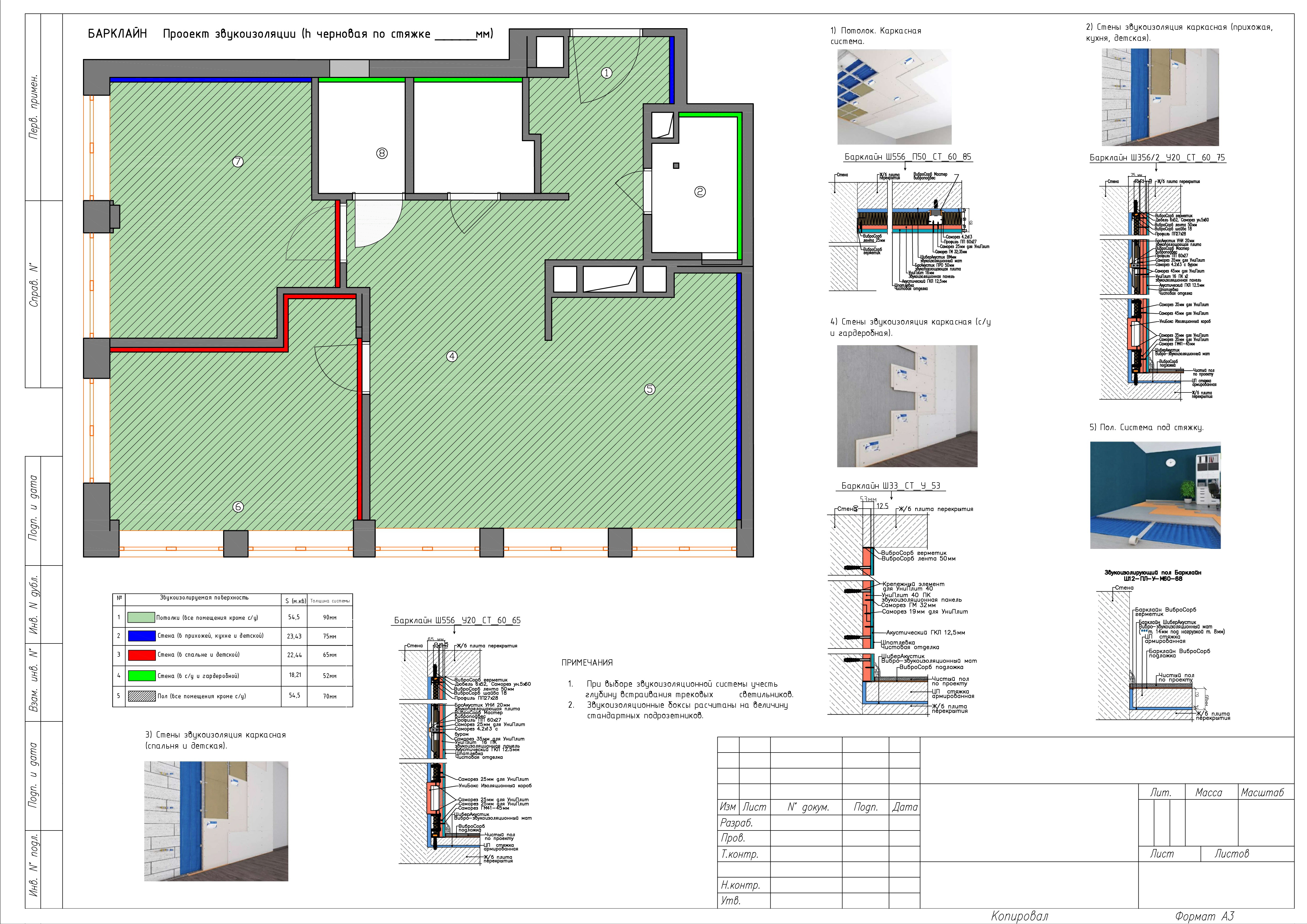
Основные ярко выраженные задачи проектирования, на примере звукоизоляции помещений:
- Проект учитывает источники шума и уровень их звукового давления.
- Проект определяет, где и какой тип системы звукоизоляции и акустической отделки оптимально устанавливается, что позволяет сэкономить пространство и эффективно изолировать только те конструкции, которые требуется.
- Толщины систем изоляции, подобранные в процессе проектирования, обоснованы – средства, в будущем потраченные на материалы потенциально превращаются в эффективный желаемый результат.
- Вы получаете полный комплект рабочей документации, на основании которой строители выполняют монтажные работы с возможным авторским надзором при участии наших инженеров. Это позволяет контролировать расходы и качественно выполнять монтажные работы, следуя проекту и пояснениям, изложенным в нем.
Стоимость проектирования:
Стоимость выполнения проектных работ определяется исходя из сложности задач по акустике и звукоизоляции, а также зависит от площадей проектируемых помещений.
Необходимо понимать, что изоляция жилой комнаты и изоляция музыкальной комнаты являются принципиально разными по уровню решаемых задач проектами.
